Rif: TE 200 ECH
SAN MARCELLINO
CASERTA
San Marcellino disponiamo di lotti di terreno edificabili per uso industriale quindi di zona D
Disponiamo di diverse metrature
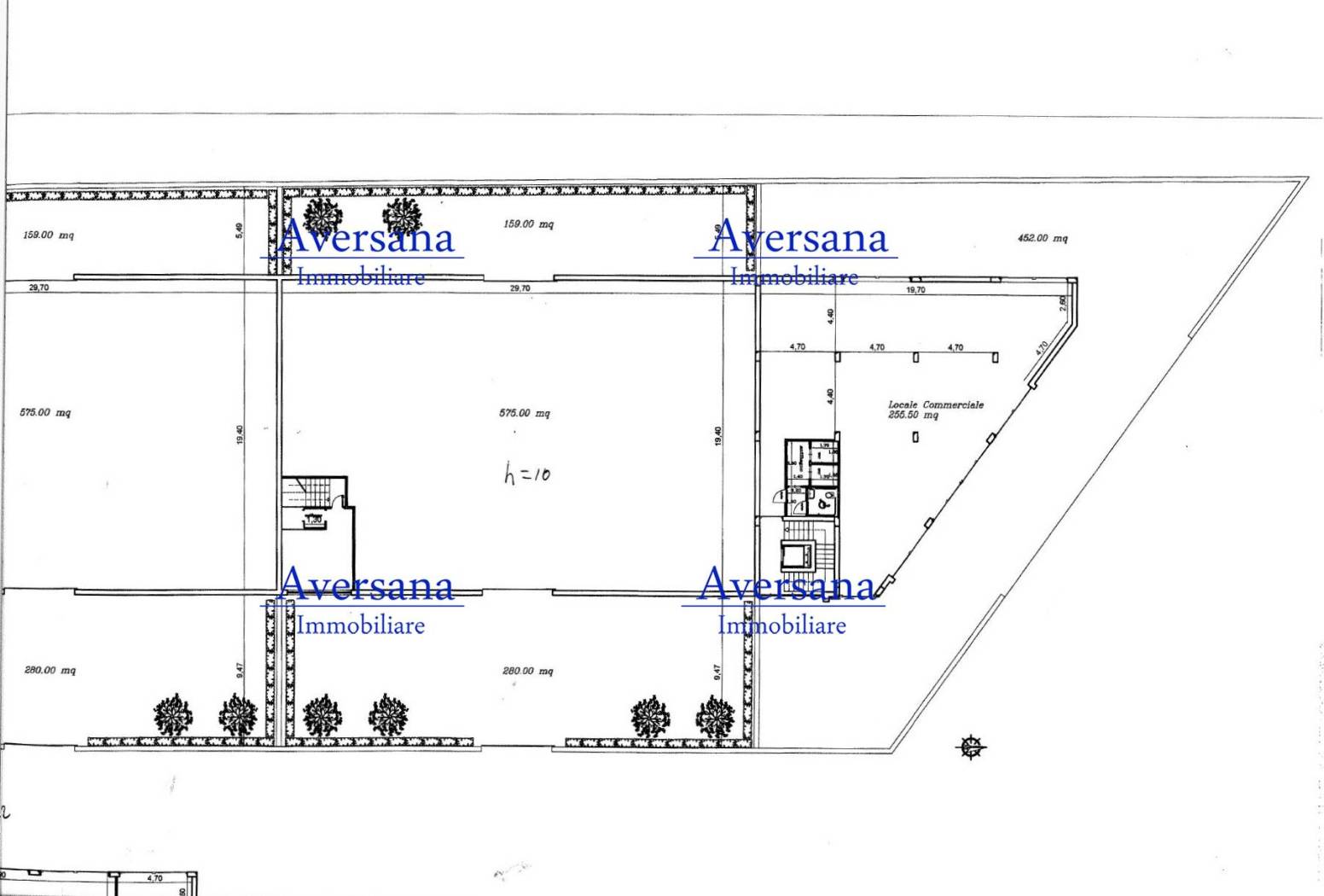
Sul terreno è stato realizzato già progetto di come potrebbe essere realizzato il capannone
Il lotto minimo di intervento è di circa 1100 mq sulla quale si può realizzare un capannone industriale di 575 mq con un area esterna su due lati del capannone
Possibilità anche di acquisto di più lotti
Prezzo a partire da Euro 200,00 al mq
Ricordati quando ci chiami di comunicarci il riferimento annuncio TE 200 ECH
Aversana Immobiliare Lusciano (CE) 81030 Via della Libertà,99 Tel. 0815035471 / 3668248654
Facilmente raggiungibile da: Trentola-Ducenta, San Marcellino, Lusciano, Aversa, Teverola, Cesa, Gricignano, Carinaro, Parete Giugliano, Villaricca, Qualiano, Arzano, Melito, Marano.
Disponiamo di diverse metrature
Sul terreno è stato realizzato già progetto di come potrebbe essere realizzato il capannone
Il lotto minimo di intervento è di circa 1100 mq sulla quale si può realizzare un capannone industriale di 575 mq con un area esterna su due lati del capannone
Possibilità anche di acquisto di più lotti
Prezzo a partire da Euro 200,00 al mq
Ricordati quando ci chiami di comunicarci il riferimento annuncio TE 200 ECH
Aversana Immobiliare Lusciano (CE) 81030 Via della Libertà,99 Tel. 0815035471 / 3668248654
Facilmente raggiungibile da: Trentola-Ducenta, San Marcellino, Lusciano, Aversa, Teverola, Cesa, Gricignano, Carinaro, Parete Giugliano, Villaricca, Qualiano, Arzano, Melito, Marano.









